Přejít k obsahu Přejít k hlavnímu menu

JIŘICE 15. června (VS ČR) - Věznice Jiřice nabízí k pronájmu za účelem zaměstnávání osob ve výkonu trestu odnětí svobody dvoupodlažní zděný objekt umístěný ve střežené části areálu o zastavěné ploše 299 m2. Objekt je plně napojen na všechny inženýrské sítě (voda, kanalizace, elektřina).

 

Věznice Jiřice nabízí k pronájmu

za účelem zaměstnávání osob ve výkonu trestu odnětí svobody

dvoupodlažní zděný objekt

 

Jedná se o nebytové prostory umístěné ve střežené části Věznice Jiřice, okres Nymburk, které jsou součástí stavebního objektu bez č.p., na pozemku St. 260, který je evidován na LV č. 351 pro katastrální území Jiřice, obec Jiřice vedeným u Katastrálního úřadu pro Středočeský kraj, Katastrální pracoviště Nymburk.  V operativní evidenci Věznice Jiřice je tato budova vedena jako „Dílny odsouzených SO 112“.

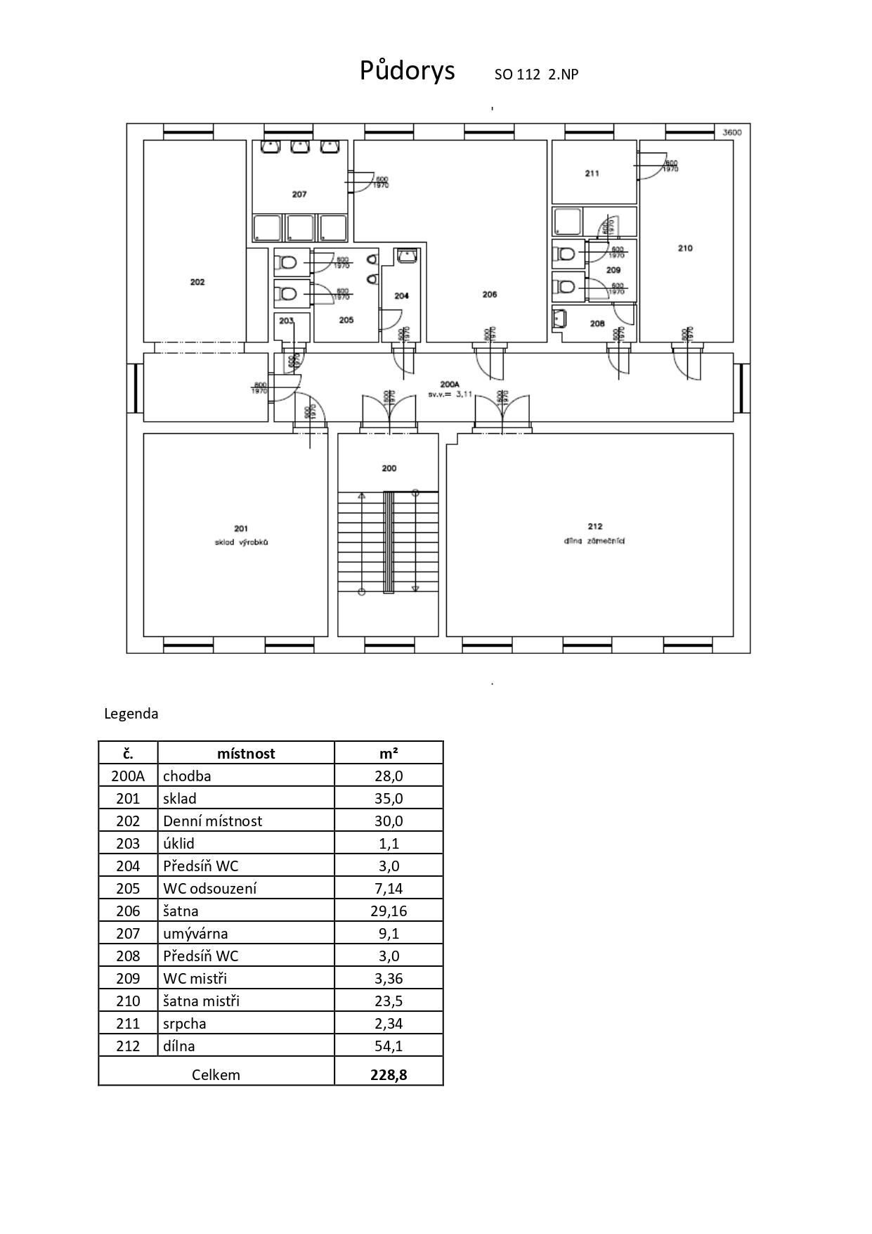
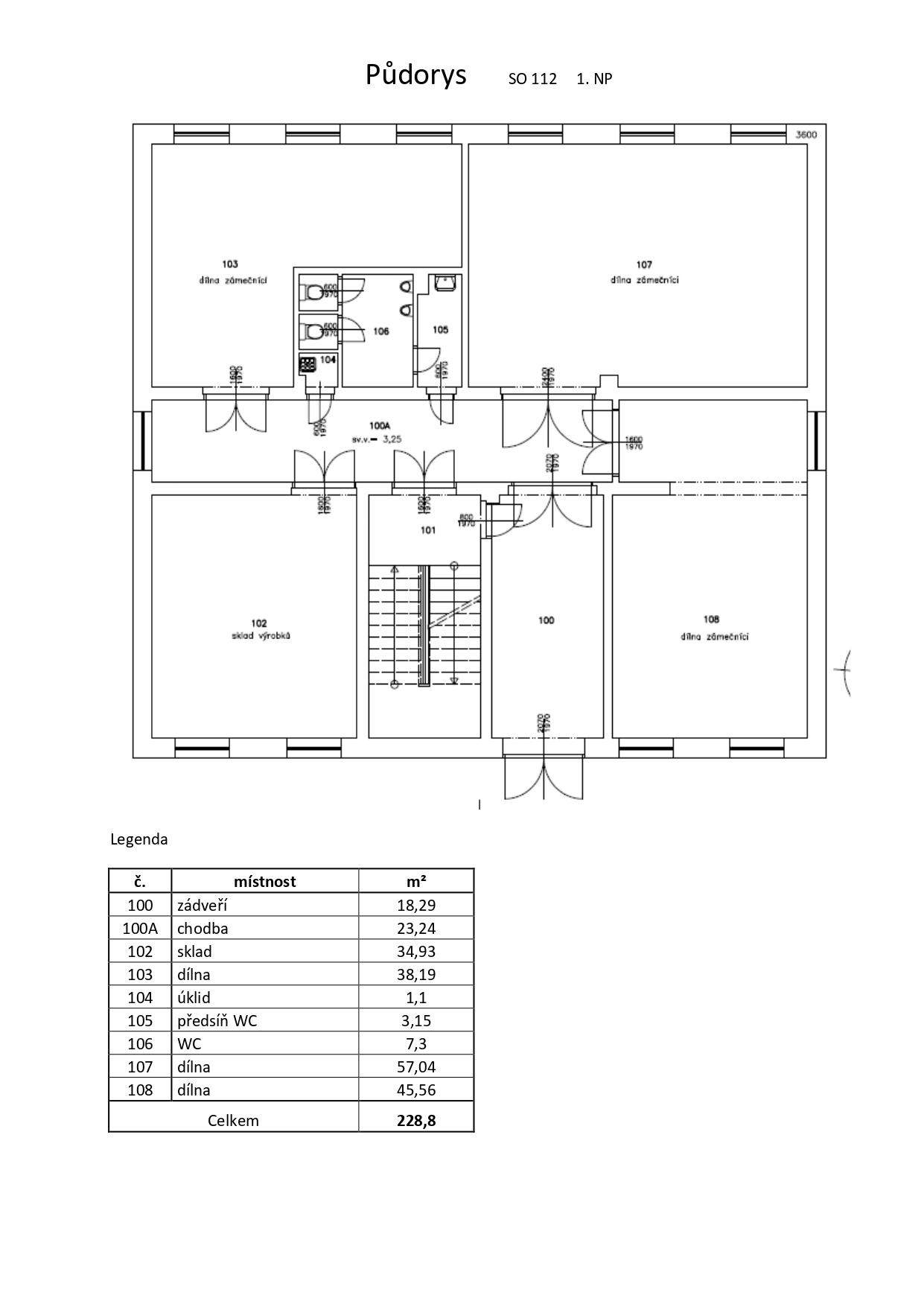
Nosnou konstrukci objektu tvoří podélný stěnový systém – trojtrakt. Obvodové zdivo tl. 450 mm je navrženo z cihelných bloků POROTHERM 440 P. Vnitřní nosné zdivo tl. 300 mm je provedeno z plných cihel na cementovou maltu. Vzhledem k nutnosti uvolnění vnitřní dispozice jsou v několika místech stěny nahrazeny železobetonovým průvlakem. Konstrukční výška v 1. NP je 3,6 m, a ve 2. NP je 3,35 m. Stropní konstrukce je navržena z předpjatých panelů SPIROL. Ve středním chodbovém traktu jsou osazeny stropní desky PZD. Stropní panely jsou osazeny na železobetonový věnec, který tvoří zároveň monolitický překlad nad prostupy v konstrukci. Příčky tl. 100 a 150 mm jsou vyzděny z dutinových příčkovek na MVC. Konstrukce objektu je v relativně dobrém stavu. Objekt je plně napojen na všechny inženýrské sítě (voda, kanalizace, elektřina). Zastavěná plocha objektu dle katastru nemovitostí je 299 m2.  V 1. NP je umístěno sociální zázemí, prostory dílen a kanceláře pro mistry výroby, celková plocha činí 228,8 m². Ve 2. NP budovy je umístěno sociální zařízení a prostory dílen o stejné celkové ploše 228,8 m².

Celková dispozice budovy je zřejmá z přiložených půdorysů a fotodokumentace.

Při zaměstnávání osob ve výkonu trestu odnětí svobody musí být respektována specifika daná vlastním výkonem trestu odnětí svobody. Z pohledu zaměstnávání se jedná zejména o nekvalifikovanou pracovní sílu a fluktuaci pracovně zařazených odsouzených danou délkou trestu odnětí svobody, případně dalšími omezujícími faktory (bezpečnostní, zdravotní, právní aj.), proto je vhodná jednoduchá manuální práce, která vyžaduje pouze zapracování. Z bezpečnostního hlediska nelze v rámci výroby produkovat nebezpečné výrobky, které by se daly zneužít jako střelné zbraně, a omezení je rovněž kladeno na nebezpečné chemické látky a hořlaviny.

Minimální nájemné dle vyhotoveného znaleckého posudku ze dne 31. 5. 2022 pod č. 2506-32/2022, vyhotoveného znalcem Ing. Lucií Cihelkovou, činí 32.500 Kč měsíčně (ročně 390.000 Kč), z toho 1. NP činí 16.250 Kč měsíčně (ročně 195.000 Kč), 2. NP činí 16.250 Kč měsíčně (ročně 195.000 Kč). K nájemnému se dále bude navíc účtovat úhrada služeb spojených s pronájmem (energie) dle skutečných spotřeb (podružné měřiče).

Mimo nájemní smlouvy bude dále uzavřena i smlouva o zaměstnávání odsouzených, která bude upravovat podmínky zaměstnávání odsouzených osob a konkrétní práci, kterou budou odsouzení realizovat.

Za účelem zaměstnávání osob ve výkonu trestu odnětí svobody lze pronajmout budovu jako celek, nebo jednotlivé NP budovy (1. NP nebo 2. NP) samostatně.

 

Bližší informace Vám poskytne Ing. Antonín Krahulec, MT 602 622 105, s nímž lze rovněž dohodnout i fyzickou prohlídku objektu.

 

Nabídky na pronájem za účelem zaměstnávání osob ve výkonu trestu odnětí svobody mohou případní zájemci zaslat nejpozději do 25. června 2022 na elektronickou adresu - rlankova@vez.jir.justice.cz

 

Nabídka musí obsahovat:

  • identifikaci zájemce (obchodní název, sídlo – adresa, IČO, DIČ, kontaktní údaje),
  • výši nabízeného nájemného s uvedením, o které prostory haly se jedná,
  • rámcový popis výrobního programu, který bude v pronajímané hale realizován,
  • zda se bude jednat o jednosměnný nebo vícesměnný provoz,
  • předpokládaný počet zaměstnávaných odsouzených v jedné pracovní směně, a
  • předpokládaný termín zavedení výrobního programu.

 

Přílohy (naleznete ve fotogalerii):

č. 1 – částečný výpis LV

č. 2 – snímek KM

č. 3 – půdorys 1. NP

č. 4 – půdorys 2. NP

Sdílet článek

Facebook
Platforma X